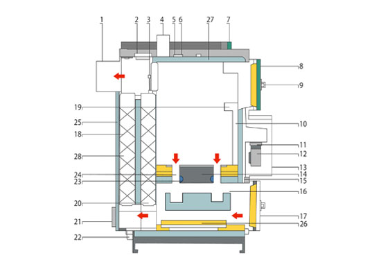
Die Hauptkomponenten des Kessels

- Schornsteinfuchs
- Wärmetauscherdeckel
- Schornsteinklappe
- Heizungsvorlauf
- Thermometerfühler
- Sicherungsthermostatfühler
- Kesselreglung
- Obere Tür
- Türgriff zum Schließen/Öffnen
- Ladekammer (Vergasungsraum)
- Lüfterklappe
- Lüfter
- Lüftergehäuse
- Düse aus Feuerbeton
- Einstellbare Blende für Sekundärluft
- Brennkammer
- Untere Tür
- Rohrwärmetauscher
- Primärluftkanal
- Abgasausgang
- Kesselrücklauf
- Ablassventil
- Sekundärluftkanal
- Wasserrost
- Isolierung
- Aschekasten
- Abkühlungswärmetauscher
- Reinigungssystem